Ingegneria
I grattacieli a struttura mista legno – cls: Timber Tower di SOM
Continua il focus sulle strutture alte in legno portante, questa volta esplorando le nuove possibilità tecniche proposte da SOM: un grattacielo di 42 piani a struttura mista legno-cls, la “Timber Tower”
Condividi
Lanciato nel 2013, il Progetto di Ricerca coordinato da SOM, e finalizzato alla costruzione di Edifici Alti con sistema strutturale a telaio ligneo, si arricchisce di un’ulteriore conferma circa la sua fattibilità, esplorata nella sua fattibilità tecnica. Nell’agosto del 2016, infatti, il team statunitense ha portato a compimento i test fisico-meccanici presso il laboratorio della Oregon State University a Corvallis, USA, con esiti del tutto soddisfacenti.
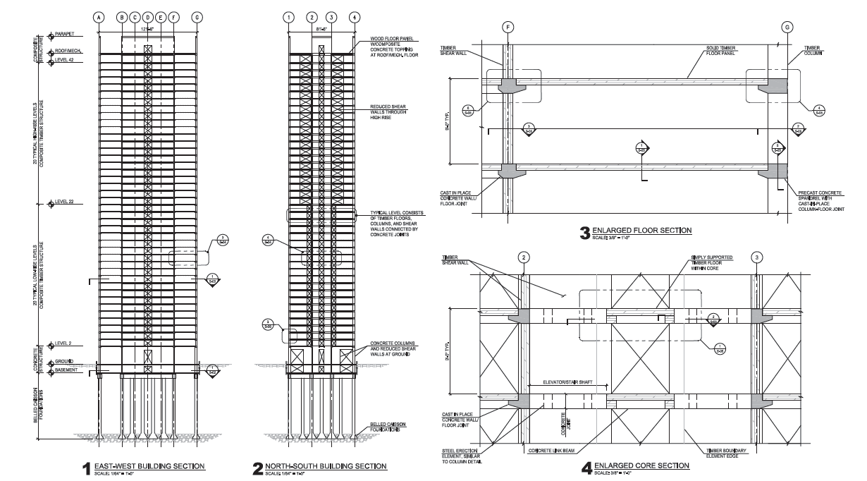
L’edificio teorico, pensato con una pianta dalla geometria rettangolare avente lati di circa 37×24,5 m, è costituito da 42 piani in elevazione, poggiante su di una fondazione a platea nervata superiormente (al di sotto dei cores) e da travi di collegamento dei testa-palo, in calcestruzzo armato. A questa si abbina un sistema fondante di tipo indiretto dato da 34 pali trivellati ad iniezione, il cui allargamento della base a forma di campana consente di disporre di una maggiore superficie per lo sviluppo della portata di base.
Il sistema strutturale ligneo, come esposto nel prodromo all’articolo, è del tipo a telaio, in cui circa 9.100 m3 lignei si abbinano agli oltre 13.600 m3 di calcestruzzo armato, per un peso complessivo stimato in 51.600 tonnellate. Un’orditura di travi in CLT, con luce netta massima di 8,0 m, imposta sui 18 pilastri di piano in legno lamellare (60×30 cm e 60×60 cm), questi ultimi sovradimensionati al fine di ottemperare ai requisiti anti-incendio prescritti dalla normativa vigente. L’interpiano previsto è di 2,83 m, in cui il piano-tipo si presenta 1,8 volte più resistente della colonna in lamellare. Le partizioni orizzontali sono anch’esse in X-lam a 5 strati incrociati, con cappa collaborante in cls Gyp-Crete in estradosso (s= 5 cm), il cui obiettivo è di smorzare la vibrazione acustica prodotta dai rumori da impatto dovuti alla praticabilità. Tale soluzione pare sufficiente al fine di limitare la diffusione sonora, come ricercato negli usuali bisogni di privacy e comfort, oltre ai già citati dettami in tema di ignifugicità delle strutture.
Per approfondire, leggi anche l’articolo “Uno scheletro in legno di sette piani firmato Shigeru Ban”
Per quanto concerne il comportamento antisismico, in termini di resistenza e duttilità, la sezione longitudinale della struttura è percorsa da 2 cores, oltre ad altrettante pareti di taglio parallele all’intero lato corto dell’edificio. La connessione tra gli elementi strutturali lignei, orizzontali e verticali, è assicurata dall’impiego di piastre e connettori metallici a scomparsa, da barre filettate e boccole, da bulloni pretensionati ASTM A490, nonché da viti a tutto filetto inclinate a 45°. Ad eccezione di quest’ultime, gli altri elementi sono annegati nella cappa in cls sopra menzionata e solidarizzati alle travi/cordoli di bordo in cls armato, aventi dimensione di 60×30 cm e copriferro di 2,5 cm.
Il rigoroso sistema di test programmato ha previsto la realizzazione di oltre 20 prove fisiche, ipotizzando differenti configurazioni di carico. Le prove sono state condotte su porzioni, in scala reale, del solaio misto CLT-cls tramite un mock-up costruito ad hoc, ciascuna delle quali avente dimensioni di circa 11×2,45 m e spessore di 18 cm. Queste vennero prodotte con essenze lignee quali l’abete di Douglas, il peccio di Sitka, l’abete Hem e il rispettivo Rosso, testate per 2 ore consecutive utilizzando un attuatore idraulico. Le deformazioni ottenute sono state misurate e registrate grazie all’impiego di 48 differenti sensori. La pressione è stata incrementata fino a giungere alla rottura dei pannelli, verificatasi all’applicazione del carico massimo di oltre 37 tonnellate, circa 8 volte superiore a quanto richiesto dagli standard normativi.
//vimeo.com/179225480
prove di carico presso la Oregon State University (courtesy of SOM)
Tale sistema strutturale, secondo i calcoli teorici sviluppati in sede di Valutazione del Ciclo Vita dell’edificio e di embodied energy, hanno permesso di stimare un risparmio di emissioni di diossido di carbonio nell’atmosfera variabile dal 60% al 75%, e comunque pari a 11.600 tonnellate di CO2 (di cui 9.500 imputabili alla struttura in cls e 2.100 a quella lignea). Tale valutazione è stata condotta prendendo come riferimento il sistema strutturale in cls armato del Dewitt-Chestnut Apartments, a Chicago (USA), edificio progettato nel 1966 sempre da SOM e che vanta anch’esso 42 piani in elevazione per un’altezza complessiva di 120,4 m.
Tale metro di paragone è stato volutamente selezionato al fin di dimostrare come il legno richieda decisamente minor energia rispetto ai processi produttivi in acciaio o cemento, assicurando una minor impronta carbonica oltre ad un maggior stoccaggio di CO2 (-78% di carbonio e il 55% più leggero).
Per approfondire, leggi anche l’articolo “L’edificio in legno più alto al mondo: Brock Commons a Vancouver”
Tuttavia, tale sistema tecnologico dovrà essere soggetto ad ulteriori approfondimenti prestazionali tra cui la resistenza al fuoco, al fine di aprire all’approvazione formale circa i termini di impiego strutturale in qualsiasi grattacielo. Il progetto ha come capo-commessa Benton Johnson, Associato dell’ufficio di SOM a Chicago, che ne ha supervisionato anche le fasi progettuali, eseguita con il software di analisi agli elementi finiti SAP 2000.
Crediti
Progetto architettonico: Skidmore, Owings & Merrill (SOM);
Capocommessa: Benton Johnson;
Team progettuale: Richard Tomlinson, William F. Baker, David Horos, Joshua Schultz, Kevin Rodenkirch, Andrés Montaña, and My-Nga Lam;
Committente: Softwood Lumber Board;
Sponsors: Anthony Forest Products, American Wood Council, FP Innovations; Idaho Forest Group, Structurlam, Shen Milsom & Wilke LCC, The University of Queensland, WoodWorks, Dr. Nick Isyumov.

Timber Tower – planimetria fondazioni © SOM

Timber Tower – sezioni © SOM

Timber Tower – prove di carico © SOM