Raffrescamento estivo di ambienti: quale sistema scegliere?
L’ottenimento del raffrescamento è possibile sia con apparecchi installati direttamente negli ambienti da raffrescare, sia con impianti veri e propri. Come dispositivi per il raffrescamento da installare nell’ambiente ci sono i condizionatori autonomi, mentre negli altri casi si può optare per un impianto di raffescamento con un dispositivo che produce centralmente un fluido di raffreddamento, una rete di distribuzione e dei terminali posti negli ambienti da raffrescare.
Condizionatori autonomi
Si tratta di dispositivi prefabbricati, che dispongono di tutti gli elementi necessari per il loro funzionamento una volta allacciati all’energia elettrica e all’eventuale acqua per il raffreddamento. I primi condizionatori autonomi erano apparecchi monoblocco da installare vicino a una finestra per consentire la fuoriuscita del calore all’esterno attraverso un foro intagliato nella finestra. Questi apparecchi presentavano problemi legati alla rumorosità dovuta al compressore installato all’interno del dispositivo e una certa rigidità di impiego legata al posizionamento dello stesso.
Questi problemi sono stati risolti con i cosiddetti apparecchi split-system divise cioè in due unità:
- unità interna nella quale è inserita la batteria di raffreddamento e il relativo elettroventilatore;
- unità esterna con compressore, batteria e relativo elettroventilatore per la cessione del calore.
Le unità, esterna e interna, che possono essere posizionate nell’ambiente più liberamente, sono collegate fra loro con tubazioni in rame.
I condizionatori autonomi, nelle versioni reversibili a pompa di calore, hanno il grosso vantaggio di raggruppare in un
unico apparecchio la funzione di riscaldamento e raffrescamento degli ambienti. Come aspetto negativo è da segnalare il suo scarso rendimento sia per il raffrescamento ma, soprattutto per il riscaldamento nelle zone climatiche più fredde. Rappresenta comunque un comodo sistema per il riscaldamento e raffrescamento di piccole unità residenziali o commerciali in zone climatiche temperate.
Oltre a condizionatori autonomi raffreddati ad aria, sono disponibili anche condizionatori autonomi raffreddati ad acqua che hanno l’importante vantaggio di non avere necessità di una unità esterna, con i relativi problemi di collocazione e rumorosità. L’inconveniente è però un consumo anche notevole di acqua, problema, questo, che si ripercuote sul piano economico e, quando si tratta di acqua potabile, anche sotto il profilo ecologico. In certi casi, l’utilizzo dell’acqua potabile per questo uso non è consentito dalle società erogatrici. Ovviamente questi aspetti vengono a cadere in tutti quei casi dove è disponibile acqua di falda o di altre derivazioni non adatte per usi potabili.
Dal punto di vista energetico questi condizionatori autonomi o pompe di calore, che utilizzano l’acqua come sorgente esterna, hanno rendimenti decisamente superiori rispetto agli apparecchi che utilizzano l’aria esterna a ragione della temperatura praticamente costante nel corso dell’anno.
I condizionatori autonomi raffreddando l’aria con temperatura ampiamente al di sotto della temperatura di rugiada, riescono a effettuare una certa deumidificazione dell’ambiente (senza però arrivare a un rigoroso controllo del livello di umidità ambiente) e l’accensione e spegnimento del compressore è affidato a un termostato-ambiente, sensibile pertanto solamente al livello di temperatura.

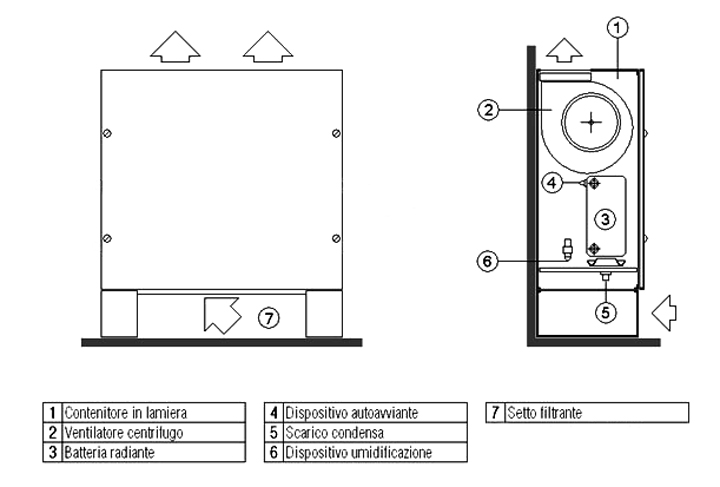
Schema di funzionamento di un ventilconvettore
Ventilconvettori
I ventilconvettori presentano la caratteristica interessante che si possono utilizzare sia come terminale di riscaldamento, sia come terminale di raffrescamento. Si possono suddividere in due tipologie:
- ventilconvettori a “due tubi”;
- ventilconvettori a “quattro tubi”.
I ventilconvettori a due tubi sono dotati di una sola batteria che assolve entrambe le funzioni; vengono quindi alimentati da un unico circuito in cui viene fatto passare fluido caldo nel periodo invernale e fluido freddo nel periodo estivo. La commutazione è fatta a livello di centrale.
La termoregolazione dei ventilconvettori è normalmente affidata a un termostato e regolatore modulante, che ha la funzione di accensione e spegnimento del ventilatore o anche di commutazione automatica della velocità di rotazione del ventilatore stesso. Se è necessario un controllo più preciso della temperatura ambiente, soprattutto in fase di riscaldamento, può anche essere
aggiunta una elettrovalvola per l’intercettazione del fluido termovettore al raggiungimento del valore prestabilito della temperatura ambiente.
I ventilconvettori a due tubi si prestano bene per gli impianti di riscaldamento/raffrescamento, senza particolari esigenze di controllo rigoroso della temperatura ambiente e senza presenza contemporanea di zone con necessità di raffrescamento
e di riscaldamento. Sono perciò adatti nel settore residenziale, nelle camere di albergo e in piccole attività commerciali.
I ventilconvettori a quattro tubi, invece, sono dotati di due batterie distinte: una per il riscaldamento e un’altra per il raffrescamento che devono pertanto essere alimentate da circuiti indipendenti, una di fluido caldo e una di fluido freddo.
Per la termoregolazione dei ventilconvettori a quattro tubi, oltre al controllo dell’accensione, spegnimento e variazione della velocità del ventilatore, devono essere necessariamente installate due elettrovalvole per far fluire attraverso la batteria solamente il fluido caldo o quello freddo, a seconda della necessità di riscaldamento o di raffrescamento.
I ventilconvettori, come i condizionatori autonomi, se vengono alimentati con acqua fredda sotto i 8÷9 °C, permettono una certa deumidificazione dell’aria.
Inoltre, ultimamente, si stanno diffondendo i cosiddetti ventiloconvettori a cassetta, previsti per essere incassati nei controsoffitti rivelandosi particolarmente indicati per ambienti con destinazione a uffici o aree commerciali.
L’aspetto interessante dei ventilconvettori è quello di consentire una veloce messa a regime degli ambienti, cosa che li rende particolarmente adatti in edifici o zone a uso intermittente.
Gli svantaggi si riferiscono soprattutto alla rumorosità, aspetto, questo, che deve essere assolutamente preso in considerazione quando si tratta di ambienti a uso residenziale, con scelta di ventilconvettori dimensionati a bassa velocità di rotazione del ventilatore, e al consumo di energia elettrica necessaria al funzionamento del motore elettrico del ventilatore. Un altro problema è il direzionamento delle correnti di aria fresca che possono essere decisamente fastidiose.

Schema di ventilconvettore a quattro tubi
Impianti VRF
Gli impianti VRF sono nati principalmente per il raffrescamento e riscaldamento degli edifici per uffici. Sono una evoluzione degli impianti di riscaldamento e raffrescamento, a espansione diretta di gas frigorifero del tipo split o multisplit, e sono costituiti da un’unità esterna e più unità interne. In uno stesso impianto è possibile avere alcune unità interne in raffreddamento e altre unità interne in riscaldamento, realizzando un trasferimento di calore fra le diverse zone.
In ciascuna zona la commutazione fra riscaldamento e raffrescamento è automatica.
I vantaggi di questo impianto sono:
- controllo preciso della temperatura ambiente;
- discreta efficienza energetica.
Gli svantaggi sono essenzialmente:
- elevato contenuto di fluido frigorifero nell’impianto;
- rilevante velocità dell’aria, soprattutto in fase di raffrescamento;
- elevati costi di installazione e manutenzione.

Schema di un impianto VRF