Lo studentato fatto di container galleggianti: Urban Rigger di BIG
È stato completato a Copenaghen il primo prototipo delle unità residenziali galleggianti realizzate per gli studenti da Bjarke Ingels insieme alla startup danese Urban Rigger.
Il programma nasce nel 2013 mosso da un obiettivo importante e ambizioso, lavorare allo sviluppo di una risposta a basso costo alla problematica e diffusa carenza di alloggi e studentati, e prende le mosse da una caratteristica tipica del territorio della capitale danese, la diffusa presenza dell’acqua, che diventa punto di partenza di un progetto che getta letteralmente le sue fondamenta proprio al di sopra di sottoutilizzati coste, rivi e canali.
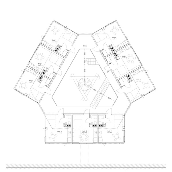
Urban Rigger è un sistema impostato sulla composizione di moduli base costituiti da container per il trasporto merci che, ripetuti, si possono collegare fra loro a formare un insieme di residenze integrate da servizi comuni ed elementi di connessione.

modulo base © BIG/Bjarke Ingels Group

espansione © BIG/Bjarke Ingels Group

render studentato © BIG/Bjarke Ingels Group
Il prototipo oggi attraccato nella baia di Copenaghen è un esempio funzionante di questo modulo base: assemblato e allestito in uno stabilimento polacco, è costituito da sei container disposti su due livelli, raggruppati attorno a uno spazio aperto centrale e sostenuti da una piattaforma flottante di cemento armato. È in grado di ospitare 12 studenti, mettendo a disposizione di ognuno spazi privati, un miniappartamento standard con letto, bagno e piccola cucina, e spazi in condivisione, come la corte centrale interna, una terrazza realizzata sul tetto piano di uno dei container superiori, un’area per il barbecue e un trampolino sull’acqua.
Tutti i container sono completamente arredati e illuminati da ampie finestre a tutt’altezza che hanno anche la funzione di aprire viste panoramiche sull’intorno e hanno un costo al metro quadro contenuto, compreso tra i 600 e i 700 euro.

Livello 1 © BIG/Bjarke Ingels Group

Livello 2 © BIG/Bjarke Ingels Group
In una città che entro il 2025 vuole essere la prima capitale europea carbon neutral e che in quest’ottica sta elaborando i suoi piani urbani (tra gli ultimi, quello che trasformerà l’Hans Tavsens Park) e dando forti sostegni allo sviluppo di innovativi sistemi di produzione e approvvigionamento energetico, la sostenibilità, sia economica che ambientale che nella gestione dello spazio urbano, è stata uno dei punti cardine su cui è stato sviluppato tutto il progetto Urban Trigger.
L’utilizzo dell’acqua, nella convinzione che le municipalità stesse possano mettere a disposizione luoghi ma soprattutto attracchi e accessi dalla terraferma, permette di raggiungere due obiettivi contemporanei: non consumare nuovo suolo urbano e realizzare alloggi a basso costo in aree centrali (dove storicamente sono localizzate la maggior parte delle strutture universitarie) che possano essere poi affittati a cifre ragionevoli (si valuta circa 500 euro mensili per un minialloggio privato).
Mentre le lamiere dei container sono termicamente isolate da un aerogel sviluppato dalla Nasa, fonti rinnovabili forniscono l’energia necessaria al loro funzionamento e climatizzano gli interni della piccola comunità grazie a pompe di calore e unità di raffrescamento installate in ogni container. Tutti sono dotati di pannelli radianti idronici a pavimento e un sistema di ventilazione a recupero di calore.

Assemblaggio © BIG/Bjarke Ingels Group

Modulo completato © BIG/Bjarke Ingels Group
Dal 2013 Urban Rigger è riuscito a trovare il sostegno di importanti sponsor: oltre a Big, che è anche socio al 10% della startup, stanno sostenendo il progetto ognuno per i propri ambiti di attività, le danesi Grundfos, leader nel settore dei sistemi di pompaggio, e Danfoss, multinazionale specializzata nella predisposizione di innovativi sistemi di climatizzazione, le tedesche Miele, Hanwha Q cells, produttore di sistemi fotovoltaici, e la società di ingegneria Niras.

Notturna © BIG/Bjarke Ingels Group
Leggi anche: Bjarke Ingels Group tra arte, architettura e scultura
